هواکش ضد انفجار محوری DZD 40/4 B Ex e؛ کارکرد مکشی و دهشی، حداکثر دمای سطح تجهیزات تا °135 سانتیگراد

هواکش‌های محوری دیواری استاندارد

هواکش دیواری روکار ضدانفجار با استاندارد Ex II 2G Ex e IIB+H2 T4 Gb
قابل استفاده در اماکن با خطر انفجار (زون 1 و 2)، فروشگاه های رنگ، اتاق های باتری، آزمایشگاه، محل کار

سیستم‌های ضدانفجار مایکو دارای نمادهای استاندارد ATEX و IECEx است. مشخصه کلی  این دسته هواکش‌ها در استاندارد ATEXو،  Ex II 2G و در استاندارد IECExو، Ex e IIB+H2 T3/T4 Gb است. بدین ترتیب طبق این استاندارد، حداکثر دمای سطح تجهیزات برای T3 برابر با °200 سانتیگراد و برای T4 برابر با °135 سانتیگراد است. محدوده دمای محیط در این هواکش‌ها از °20- تا °40 سانتیگراد و در برخی دیگر تا °50 سانتیگراد می‌باشد. هواکش‌های ضدانفجار مایکو نیازهای حفاظتی دستورالعمل 2014/34/EU  اروپا را برای واحدها و سیستم‌های با احتمال انفجار ارضاع نموده و برای کاربرد در زون های 1 و 2  مناسب است.


ویژگی‌ها

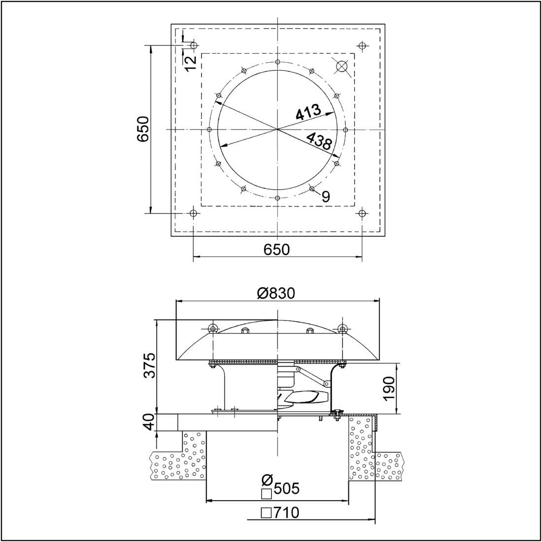
  سایز قطر خروجی 40 سانتیمتر

  حفاظت در برابر انفجار طبق استاندارد ATEX

  علائم طبقه بندی انفجاری Ex II 2G Ex e IIB+H2 T4 Gb

  برای استفاده در محیط با دمای از 20- تا 40 درجه سانتی گراد

  مقاوم در برابر نفوذ آب (IP54)

  مناسب برای استفاده در نواحی خطر 1 و 2

  جنس پایه، نازل ورودی و کاور محافظ در برابر باران از استیل گالوانیزه است.

  دارای حلقه‌های مناسب برای حمل و نقل توسط جرثقیل

  در صورت کارکرد معکوس، حجم جریان هوای تهویه حدود 35% کاهش می یابد

  حفاظت در برابر اضافه بار حرارتی

  مناسب برای کارکرد دائم

  موتور مقاوم کم‌مصرف بلبرینگی و بی‌نیاز به تعمیر و نگهداری


مشخصات فنی

سایز نامی:

400 میلیمتر

ابعاد ظاهری:

650 * 650 میلیمتر

نوع کارکرد (مکش / دهش):

مکش / دهش

حداکثر حجم جریان هوا:

3.200 مترمکعب در ساعت

ولتاژ:

400 ولت (سه فاز)

نوع ولتاژ:

جریان متناوب

فرکانس:
50 هرتز
حداکثر مصرف انرژی:

170 وات

حداکثر مصرف جریان:

0.7 آمپر

حداکثر دور موتور:

1.465 دور در دقیقه

COS(φ):

0.45

کنترل پذیری سرعت:

دارد

نوع پروانه (پیشران):

اکسیال (محوری)

محل نصب:

بام

نوع نصب:

روکار

درجه حفاظتی (در برابر نفوذ آب):

IP 54 (مقاوم در برابر پاشیدن آب از تمام جهات)

میزان صدا (فشار صوتی):

84 دسیبل

حداکثر دمای هوای در جریان:

20- تا 40 درجه سانتیگراد

جنس بدنه:

استیل گالوانیزه

وزن:

26.6 گیلوگرم

طراحی EX مطابق با مشخصات دستورالعمل ATEX:

Ex II 2 G

طراحی EX مطابق با استاندارد IECEx:

Ex e IIB + H2 T4 Gb

IA/IN:

5.7

زمان Ta:

110 ثانیه

وضعیت عملکردی:

S1

PTC DIN 44082:

M100

گواهینامه آزمون EC:

EX5 03 06 39250 007

کلاس حرارتی تجهیزات:

T4

کلاس حرارتی مواد عایقبندی .Th.Cl:

F(155)


نمودار بازدهی

جزئیات سربندی

 

شـرکت مهندسـی- بازرگانی ژفــــکر
بـا 45 ســـــــــــال ســـــــابـقه

سیستم مدیریت هوشمند ساختمان
تـأسیســات و تجهـیزات الکتریـکی

 


 
عرضه مستقیم تجهیزات الکتریکی و خدمات تأسیساتی            www.jafkar.com 
تحت لیسـانس کمپـانی‌هــای Maico ،Gira و این آدرس ایمیل توسط spambots حفاظت می شود. برای دیدن شما نیاز به جاوا اسکریپت دارید           Mobotix

نشانی دفتر: تهران، بزرگراه صدر، خروجی کاوه جنوب، بن‌بست نصر، پ ۳، واحد ۱
تلفن: ۲۲۰۰۲۴۳۵   |   نمابر: ۲۲۶۲۲۴۳۵   |  پیامک/ ارتباط مجازی: ۰۹۱۰۸۹۴۰۳۳۵

                 

      

English                                                   رحمت خدا بر کسی که وقتی کاری می‌کند، عالی انجامش دهد.

                                                              الّلهُــمَّ صَـلِّ عَلـی مُحَمَّـــد وَآلِ مُحَمَّــــد وَ عَجِّــل فَرَجَهُـــم

      Gira     Maico    Mobotix