هواکش جعبه‌ای ESR-25-2 EC؛ 5 سرعته، عایق صوتی، کم مصرف

هواکش‌های پربازده

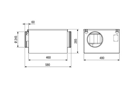
هواکش جعبه‎‌ای داخل داکت، 5 سرعته، با پروانه‌های سانتریفیوژی، دارای عایق صوتی، کم‌مصرف
قابل استفاده در اماکن تجاری، نمایشگاه، ادارات، اتاق فرمان، رخت کن


ویژگی‌ها

  سایز قطر خروجی 25 سانتیمتر

  دارای صفحات جاذب صوتی با جنس فیبر معدنی با ضخامت 50 میلیمتر

  امکان نصب مستقیم در داکت‌های تهویه

  مقاوم در برابر نفوذ آب IPX4

  حفاظت در برابر اضافه بار حرارتی

  مناسب برای کارکرد دائم

  موتور مقاوم کم‌مصرف بلبرینگی و بی‌نیاز به تعمیر و نگهداری


مشخصات فنی

سایز نامی:

250 میلیمتر

ابعاد ظاهری:

610 * 540 میلیمتر

نوع کارکرد (مکش / دهش):

مکش

حداکثر حجم جریان هوا:

1.190 مترمکعب در ساعت

ولتاژ:
230 ولت (تکفاز)
نوع ولتاژ:

جریان متناوب

فرکانس:
50 هرتز
حداکثر مصرف انرژی:

204 وات

حداکثر مصرف جریان:

1.4 آمپر

حداکثر دور موتور:

3.210 دور در دقیقه

کنترل پذیری سرعت:

دارد

نوع پروانه (پیشران):

نیمه شعاعی

محل نصب:

داخل داکت

درجه حفاظتی (در برابر نفوذ آب):

IP X4 (مقاوم در برابر پاشیدن آب از تمام جهات)

میزان صدا (فشار صوتی):

78 دسیبل

حداکثر دمای هوای در جریان:

20- تا 50 درجه سانتیگراد

جنس بدنه:

استیل گالوانیزه

وزن:

18 گیلوگرم


 

شـرکت مهندسـی- بازرگانی ژفــــکر
بـا 50 ســـــــــــال ســـــــابـقه

سیستم مدیریت هوشمند ساختمان
تـأسیســات و تجهـیزات الکتریـکی

 


 
عرضه مستقیم تجهیزات الکتریکی و خدمات تأسیساتی            www.jafkar.com 
تحت لیسـانس کمپـانی‌هــای Maico ،Gira و این آدرس ایمیل توسط spambots حفاظت می شود. برای دیدن شما نیاز به جاوا اسکریپت دارید           Mobotix

نشانی دفتر: تهران، بزرگراه صدر، خروجی کاوه جنوب، بن‌بست نصر، پ ۳، واحد ۱
تلفن: ۲۲۰۰۲۴۳۵   |   نمابر: ۲۲۶۲۲۴۳۵   |  پیامک/ ارتباط مجازی: ۰۹۱۰۸۹۴۰۳۳۵

                 

      

English                                                   رحمت خدا بر کسی که وقتی کاری می‌کند، عالی انجامش دهد.

                                                              الّلهُــمَّ صَـلِّ عَلـی مُحَمَّـــد وَآلِ مُحَمَّــــد وَ عَجِّــل فَرَجَهُـــم

      Gira     Maico    Mobotix